Italiano
399.000 €

Villa indipendente con ampio giardino

Villa in vendita • Olgiate Comasco - Via del castagneto
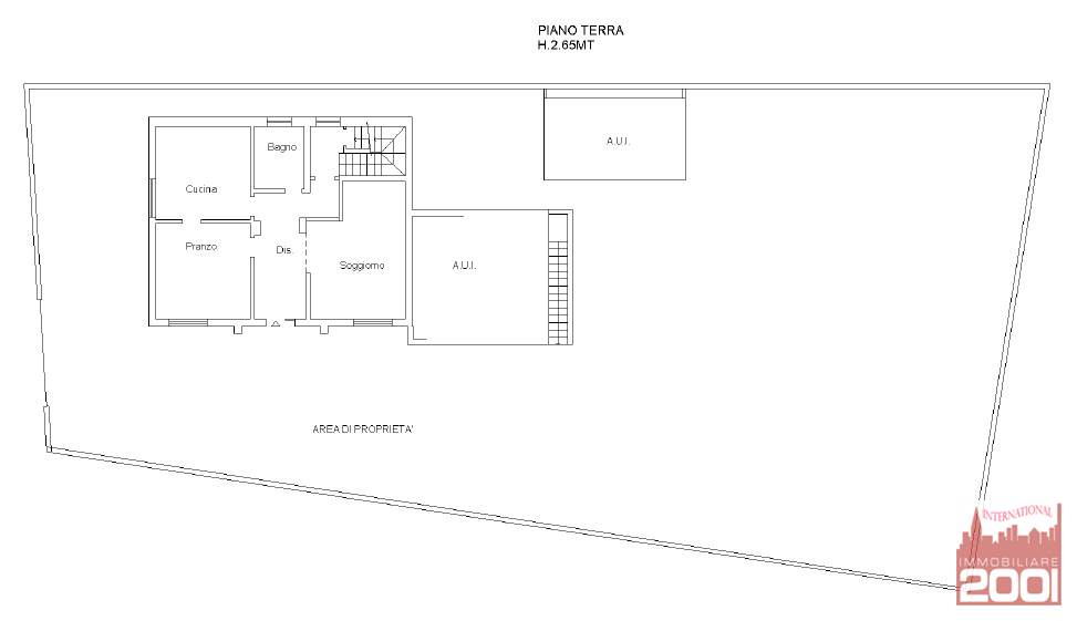
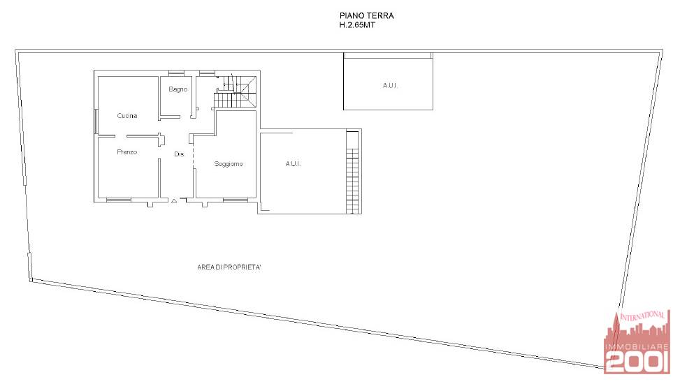
In posizione tranquilla e riservata, proponiamo in vendita ampia villa indipendente circondata da un curato giardino privato di circa 700 mq. L'immobile, edificato negli anni Settanta e oggetto di una ristrutturazione negli anni '90, si presenta in ottime condizioni e si sviluppa su due livelli abitativi, oltre a un'ampia taverna e un sottotetto.
Attualmente configurata come unità unica, la villa è predisposta per essere suddivisa in due appartamenti indipendenti.
Sono presenti due termostati divisi per piano e la caldaia è stata sostituita nel 2017.
Soluzione ideale per famiglie numerose o per chi cerca un’abitazione con spazi generosi, tranquillità e la possibilità di ospitare più nuclei familiari.
Contattaci per maggiori informazioni o per organizzare una visita.
Caratteristiche principali
Codice
V002775
Città
Olgiate Comasco
Categoria
Villa
Prezzo
399.000 €
Locali
4
Camere
4
Bagni
2
Mq
264
Box
2
Balconi
1
Terrazzi
1
Piano
1
Classe energetica
E
Stato Immobile
Buono
Grado
Signorile
Posizione
Periferia
Panorama
Vista Giardino
Orientamento
Nord Ovest Sud Est
Lati Liberi
4
Giardino
Privato
Arredi
Possibilità
Tipo Soggiorno
Soggiorno
Tipo Cucina
Abitabile
Riscaldamento
Autonomo
Tipo Riscaldam.
Caldaia
Tipo Impianto
Radiatori
Fonte Energetica
Gas
Acqua Calda
Autonoma
Raffrescamento
No
Infissi
Legno Doppio Vetro
Serramenti
Ottimo
Persiana
Persiana Metallo
Pavim. Giorno
Graniglia
Pavim. Notte
Graniglia
Pavim. Cucina
Graniglia
Pavim. Bagno
Ceramica
Accesso Disabili
Nessuna Barriera
Accesso interno disabili
Pieno accesso

Accessori: Doppi Vetri, Passaggio Automobilistico, Passaggio Pedonale, Ripostiglio

Mappa
Via del castagneto , Olgiate Comasco (CO)
Video
Virtual tour 360°
Richiedi informazioni
Invia
Condividi su
Cookie preference