Italiano
446.000 €

Ampio quadrilocale di nuova costruzione

4 o più locali in vendita • Seregno - Via Verdi
Seregno, in posizione semicentrale tranquilla, comodo con tutti i negozi e i servizi, vicinissimo a scuole, asili, oratorio e non lontano dalla stazione ferroviaria, offriamo in vendita nuovo appartamento quadrilocale con doppi servizi e doppio terrazzo.
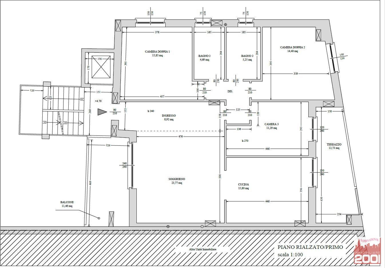
Generoso nelle metrature, arioso nei rapporti aeroilluminanti e riservato per affacci e scelta degli spazi, l’appartamento quadrilocale si sviluppa al piano rialzato di una nuova palazzina di sole 4 unità abitative, per complessivi 160 mq. Priva di spese condominiali e dotata di ascensore, la nuova edificazione ha visto l’impiego di materiali da costruzione di ottima qualità e fattura: tamponamento muri esterni in Poroton e cappotto termico per uno spessore di 40 cm ca., tetto piatto a bassa manutenzione con coibentazione in Isotek, impianto fotovoltaico con 3 kW di potenza dedicati ad ogni abitazione, vetrate isolanti termoacustiche con triplo vetro basso emissivo, composte da telaio in pvc rinforzato con struttura interna in acciaio e molto altro ancora.
Internamente tanto i muri divisori, quanto i pavimenti, i rivestimenti e le finiture in generale sono ancora integralmente personalizzabili a seconda dei gusti dell’acquirente. Ecco, tuttavia, un possibile suggerimento di suddivisione che abbiamo ideato: ingresso su ampio soggiorno con affaccio sul terrazzo coperto, cucina abitabile con affaccio sul secondo terrazzo coperto, camera singola, disimpegno zona notte, bagno finestrato, spaziosa camera matrimoniale, secondo bagno finestrato e seconda camera matrimoniale. Completano la proprietà due posti auto scoperti di pertinenza e una comoda cantina.
Ricco capitolato ed impianti ad elevate prestazioni: riscaldamento termoautonomo con pompa di calore e pannelli radianti a pavimento, bagni con termoarredo, immobile libero su tre lati ottimamente esposto, pavimenti soggiorno e camere in parquet di essenze pregiate (a scelta tra rovere, iroko o doussié), previsti invece ceramica monocottura smaltata o grès ceramico rettificato oppure granito grès di prima scelta per cucina e bagni, presenti inoltre tapparelle elettriche con relè centralizzato.
Il presente appartamento incarna e risponde appieno all’esigenza propria di ogni famiglia di abitare in una casa riservata e moderna, dotata di ogni comfort, senza però rinunciare alle comodità e all’immediatezza di un’ubicazione centrale, rappresentando una sintesi perfetta e senza compromessi.
Possibilità di due posti auto scoperti e una pratica cantina ad Euro 29.000,00.
Si consiglia la visione. Ultime disponibilità!
Per salvaguardare la privacy del proprietario e al contempo permettere al possibile futuro acquirente di individuare la zona d’ubicazione dell’immobile, precisiamo che l’indirizzo citato è puramente indicativo.
Caratteristiche principali
Codice
V002762
Città
Seregno
Categoria
4 o più locali
Prezzo
446.000 €
Locali
4
Camere
3
Bagni
2
Mq
160
Posti auto
2
Terrazzi
2
Classe energetica
A2
Stato Immobile
Nuovo
Grado
Signorile
Posizione
Centro
Panorama
Vista Aperta
Orientamento
Est Nord Ovest
Lati Liberi
3
Giardino
Comune
Arredi
Non Arredato
Tipo Soggiorno
Soggiorno
Tipo Cucina
Abitabile
Riscaldamento
Autonomo
Tipo Riscaldam.
Pompa di Calore
Tipo Impianto
Pavimento
Fonte Energetica
Fotovoltaico
Acqua Calda
Autonoma a Pannelli
Raffrescamento
Predisposizione
Infissi
PVC Triplo Vetro
Serramenti
Nuovo
Persiana
Tapparella PVC
Pavim. Giorno
Parquet
Pavim. Notte
Parquet
Pavim. Cucina
Gres Porcellanato
Pavim. Bagno
Gres Porcellanato
Accesso Disabili
Nessuna Barriera
Accesso interno disabili
Pieno accesso
Isolamento
Presente
Isolamento termico
Cappotto esterno
Isolamento acustico
Isolamento completo
Spessore cappotto (cm)
40
Destinato a residenti
Si
Impianto d’irrigazione
No

Accessori: Ascensore, Cancello Elettrico, Impianto Fotovoltaico, Passaggio Automobilistico, Passaggio Pedonale, Porta Blindata, Tapparelle Elettriche, Tripli Vetri, Video Citofono

Mappa
Via Verdi , Seregno (MB)
Video
Virtual tour 360°
Richiedi informazioni
Invia
Condividi su
Cookie preference