Italiano
5.000 €

Ampio capannone con spazio esterno a Cirimido

Capannone in affitto • Cirimido - Via Mazzini , 100
Affittasi capannone industriale/artigianale di circa 1.281 mq complessivi, cat.D/7, in posizione strategica, a pochi minuti dalle principali autostrade.
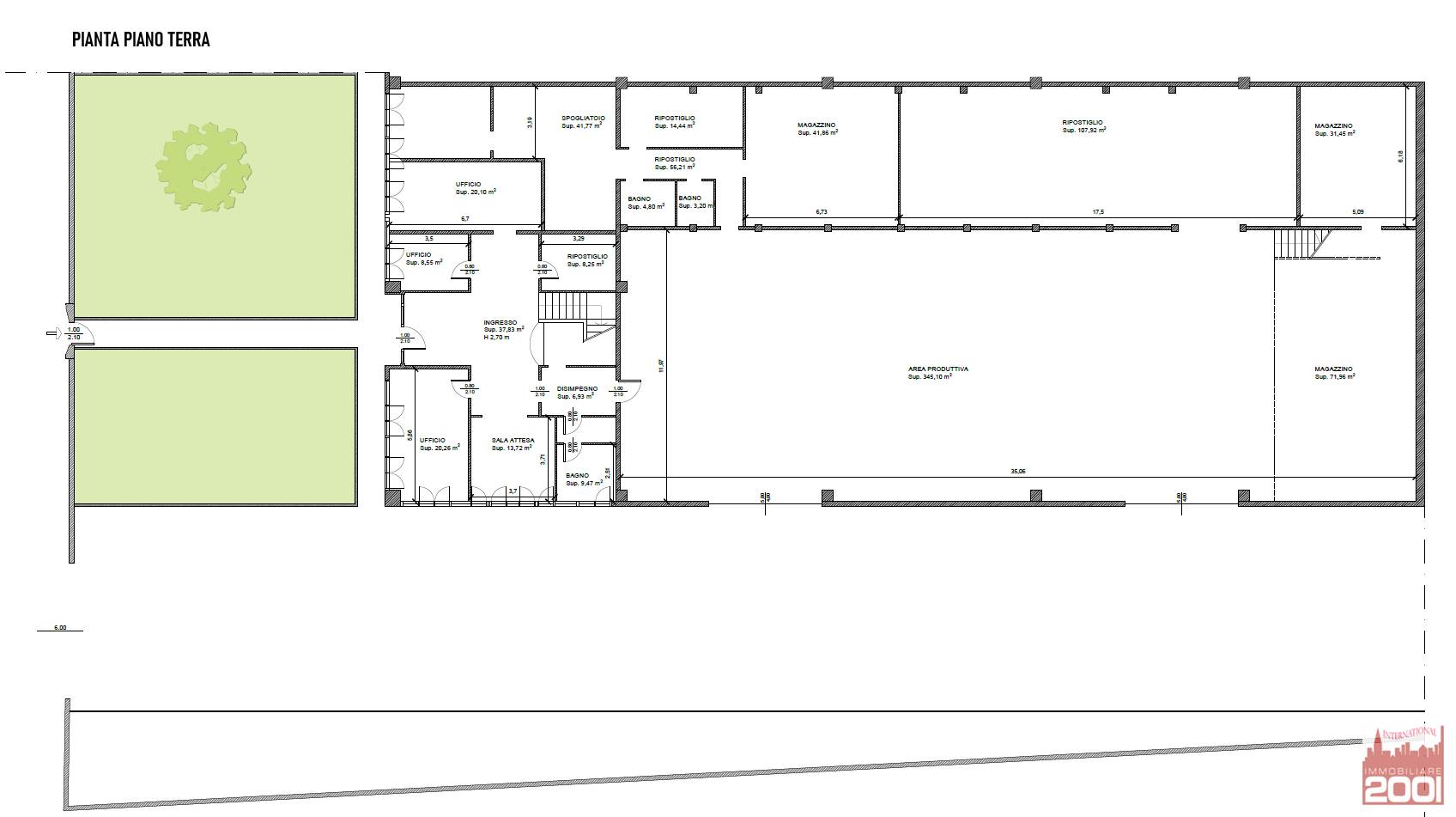
Composizione:
Piano terra (totale 814 mq):
• Uffici: 128 mq (3 uffici + sala d’attesa)
• Archivio e ripostigli: 266 mq
• Magazzino principale: 420 mq
• Spogliatoio, disimpegno, 3 bagni
Piano primo (totale 182 mq):
• Uffici: 182 mq (3 uffici, disimpegno, ripostiglio, 2 bagni)
• Soppalco: 285 mq
• Area deposito con scaffalature metalliche
Spazi esterni
• Ampio piazzale esterno per carico/scarico, manovra mezzi e parcheggi.
Dotazioni
• Riscaldamento e raffrescamento con fan coil
• Pompa di calore
• Boiler per acqua calda sanitaria
Caratteristiche
• Uffici su due livelli
• Ampie superfici di deposito
• Spazi versatili e funzionali
• Ottima accessibilità e collegamenti rapidi con la rete autostradale
Ideale per attività industriali e artigianali/commerciali.
Contattaci per fissare una visita!
LIBERO SUBITO
Caratteristiche principali
Codice
A001657
Città
Cirimido
Categoria
Capannone
Prezzo
5.000 €
Locali
6
Bagni
5
Mq
1300
Mq Giardino
200
Classe energetica
G
Stato Immobile
Buono
Grado
Medio
Posizione
Periferia
Panorama
Vista Aperta
Orientamento
Nord Est
Lati Liberi
2
Riscaldamento
Autonomo
Tipo Riscaldam.
Pompa di Calore
Tipo Impianto
Aria
Fonte Energetica
Elettrico
Acqua Calda
Boiler elettrico annuale
Raffrescamento
Fan Coil
Infissi
Alluminio Doppio Vetro
Serramenti
Ottimo
Pavim. Bagno
Ceramica
Pavimento
Cemento
Cauzione
Tre Mesi
Canoni Anticipati
Un Mese
Tipo Contratto
6+6 Anni
Destinazione
Industriale
Accesso Disabili
Nessuna Barriera
Accesso interno disabili
Pieno accesso
Isolamento
Non presente
Isolamento termico
Nessuno
Isolamento acustico
Nessuno
Metri altezza capannone
6
Mq uffici
310
Mq piazzale/corte
500
Impianto d’irrigazione
No

Accessori: Antifurto, Aria Condizionata, Bagno Handicap, Cancello Elettrico, Doppi Vetri, Fibra Ottica, Passaggio Automobilistico, Passaggio Pedonale, Porta Blindata, Rete Dati, Ripostiglio, Video Sorveglianza

Mappa
Via Mazzini 100 , Cirimido (CO)
Video
Virtual tour 360°
Richiedi informazioni
Invia
Condividi su
Cookie preference