Italiano
2.900 €

Capannone ad uso industriale in locazione

Capannone in affitto • Gallarate - Via Irlanda
Gallarate, ubicato in posizione perfettamente servita, con la vicina Autostrada Pedemontana (A36), prossimo all’aeroporto di Milano Malpensa, alla SS33, all’autostrada dei Laghi A8 Milano-Varese e all’Autostrada E62, offriamo in locazione interessante capannone ad uso industriale-artigianale.
Inserito in una zona industriale attiva e dinamica con SPESE CONDOMINIALI ASSAI CONTENUTE.
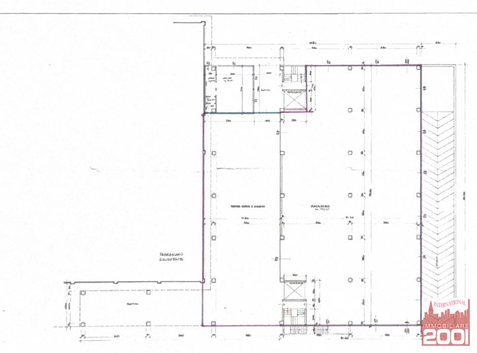
L’immobile, ubicato INTERAMENTE A PIANTERRENO, si sviluppa su un totale di 1.200 mq di superfici interne, con annesse comode pertinenze esterne quali 5 POSTI AUTO COPERTI da tettoia, un ampio CORSELLO CARRABILE AD USO ESCLUSIVO con cancello elettrico e una pratica AREA ESTERNA per carico/scarico situata direttamente davanti al portone d’ingresso.
Il fabbricato principale è costituito da capannone a tre campate con due file di pilastri in cemento armato (sette pilatri per ciascuna fila), libero su tre lati, con accesso tramite grosso portone sezionale motorizzato (misure portone: altezza 5,00 m – larghezza 8,27 m).
Completano l’interno due uffici prefabbricati e un bagno con antibagno.
Pavimentazione in calcestruzzo, portone interno, impianto d’antifurto, videosorveglianza, assenza di barriere architettoniche, doppia uscita d’emergenza, altezza utile sotto-trave: 4,82 m;
altezza sotto-tegolo: 5,20 m; altezza architrave 4,60 m.
Immobile non riscaldato.
Libero subito, da vedere!
Per salvaguardare la privacy del nostro proprietario e al contempo poter dare la possibilità al futuro inquilino di poter individuare la zona di ubicazione dell’immobile, comunichiamo che l’indirizzo citato è puramente indicativo.
Caratteristiche principali
Codice
A001586
Città
Gallarate
Categoria
Capannone
Prezzo
2.900 €
Locali
2
Bagni
1
Mq
1200
Posti auto
5
Classe energetica
G
Stato Immobile
Buono
Grado
Medio
Posizione
Periferia
Panorama
Vista Giardino
Orientamento
Nord Ovest Sud Est
Lati Liberi
3
Riscaldamento
No
Acqua Calda
Autonoma
Pavimento
Cemento
Cauzione
Tre Mesi
Canoni Anticipati
Un Mese
Tipo Contratto
6+6 Anni
Destinazione
Industriale
Accesso Disabili
Nessuna Barriera
Accesso interno disabili
Pieno accesso
Tipo Registr.
Tradizionale
Isolamento
Non presente

Accessori: Antifurto, Passaggio Automobilistico, Passaggio Pedonale

Mappa
Via Irlanda , Gallarate (VA)
Video
Virtual tour 360°
Richiedi informazioni
Invia
Condividi su
Cookie preference